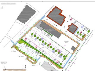
È stato approvato dalla Giunta di Borghetto Santo Spirito il progetto esecutivo che prevede il rifacimento del parcheggio pubblico di Vico Teano posto nelle immediate vicinanze di Piazza Libertà.
Attualmente il parcheggio è composto da 18 posti auto alcuni dei quali di ridotte dimensioni e di non facile utilizzo. La nuova progettazione prevede la razionalizzazione degli spazi con la realizzazione di 24 posti auto di adeguate dimensioni e 14 posti moto oltre alla riqualificazione estetica dell'area con la posa di una nuova illuminazione e alberature.
"Un ulteriore tassello che porterà nei prossimi 3/4 mesi alla completa riqualificazione del comparto cittadino a valle della via Aurelia nel tratto Piazza Libertà - Capo Santo Spirito. Infatti questo intervento di riqualificazione, finanziato con risorse comunali, si va a sommare a quelli previsti, finanziati da oneri di urbanizzazione a scomputo, per la piazzetta in fondo a via Magenta e per la zona di Piazza della Pace oltre che alla realizzazione del marciapiede a sbalzo che andrà a connettersi con la passerella pedonale di Capo Santo Spirito creando un collegamento senza soluzione di continuità e accessibile a tutti, carrozzine incluse, da piazza Libertà al belvedere a picco sul mare che verrà realizzato per connettere il marciapiede a sbalzo con la passerella" commenta il sindaco Giancarlo Canepa.
Nel Consiglio Comunale del 28 dicembre scorso, infatti, era stata approvata una permuta con un soggetto privato propedeutica alla realizzazione di nuovi parcheggi pubblici e privati in Piazza della Pace e in via Magenta. L’intervento prevede la realizzazione di 88 posti auto privati. Come oneri di urbanizzazione a scomputo verranno realizzati 26 parcheggi pubblici (in realtà 5 sono già esistenti e verranno solo spostati) la posa di circa 26 alberature pubbliche e circa 13 all’interno dell’area privata, la realizzazione di un marciapiede lungo la via Aurelia e lungo la via di accesso a Piazza della Pace compresa la realizzazione di area verde e pubblica illuminazione e il rifacimento della piazza pubblica in fondo a via Magenta e del bagno pubblico lì presente che verrà spostato è completamente rifatto.
"L'intervento in piazza della Pace e via Magenta consentirà la riqualificazione di una grande area attualmente in stato di degrado migliorando sensibilmente la qualità dei luoghi che vedranno nel breve anche la realizzazione della Casa delle Associazioni che speriamo possa diventare un volano per promuovere ulteriormente l’associazionismo del paese quanto mai necessario dopo gli anni bui della pandemia" conclude il primo cittadino.








